
Zekerheid vóórdat u uw woning uitbreidt. Bouwkundige tekeningen en constructieve onderbouwing die aansluiten op regelgeving, gemeentelijke eisen en de bestaande draagconstructie.
Volledig uitgewerkte bouwtekeningen en constructieve onderbouwing voor een dakopbouw, geschikt voor gemeentelijke toetsing en uitvoering.
De doorlooptijd is afhankelijk van de complexiteit van de woning en de vergunningplicht. In de meeste gevallen ontvangt u binnen enkele werkdagen de eerste uitwerking.
Een correcte technische basis die zorgt voor duidelijkheid, voorspelbaarheid en minimale vertraging binnen het vergunningstraject.
Wij combineren bouwkundig en constructief inzicht met kennis van regelgeving en gemeentelijke eisen, zoals het omgevingsplan en de welstand, zodat uw dakopbouw technisch verantwoord en vergunningsgeschikt wordt uitgewerkt.
Dit leidt vaak tot vertraging, extra kosten en het opnieuw moeten indienen van de aanvraag. Voorkom deze fouten.
Een dakopbouw is een ingrijpende uitbreiding van uw woning en vraagt om een zorgvuldige voorbereiding.
Stel u een traject voor waarbij vooraf duidelijk is wat constructief mogelijk is, hoe de bestaande woning wordt versterkt en welke eisen vanuit de gemeente gelden. Geen verrassingen tijdens de aanvraag, geen onduidelijkheid over draagkracht of hoogte, en geen onverwachte vertraging door ontbrekende onderbouwing.
De bestaande constructie en fundering worden beoordeeld, de extra belasting wordt berekend en de nieuwe situatie wordt technisch correct uitgewerkt in duidelijke tekeningen. Indien vergunningplichtig, wordt de aanvraag zorgvuldig voorbereid en afgestemd op de geldende gemeentelijke voorschriften en welstandseisen.
Met een volledige en onderbouwde voorbereiding ontstaat rust in het proces. U weet dat de uitbreiding technisch verantwoord is, de gemeente beschikt over een toetsbaar dossier en de uitvoering kan gecontroleerd plaatsvinden.
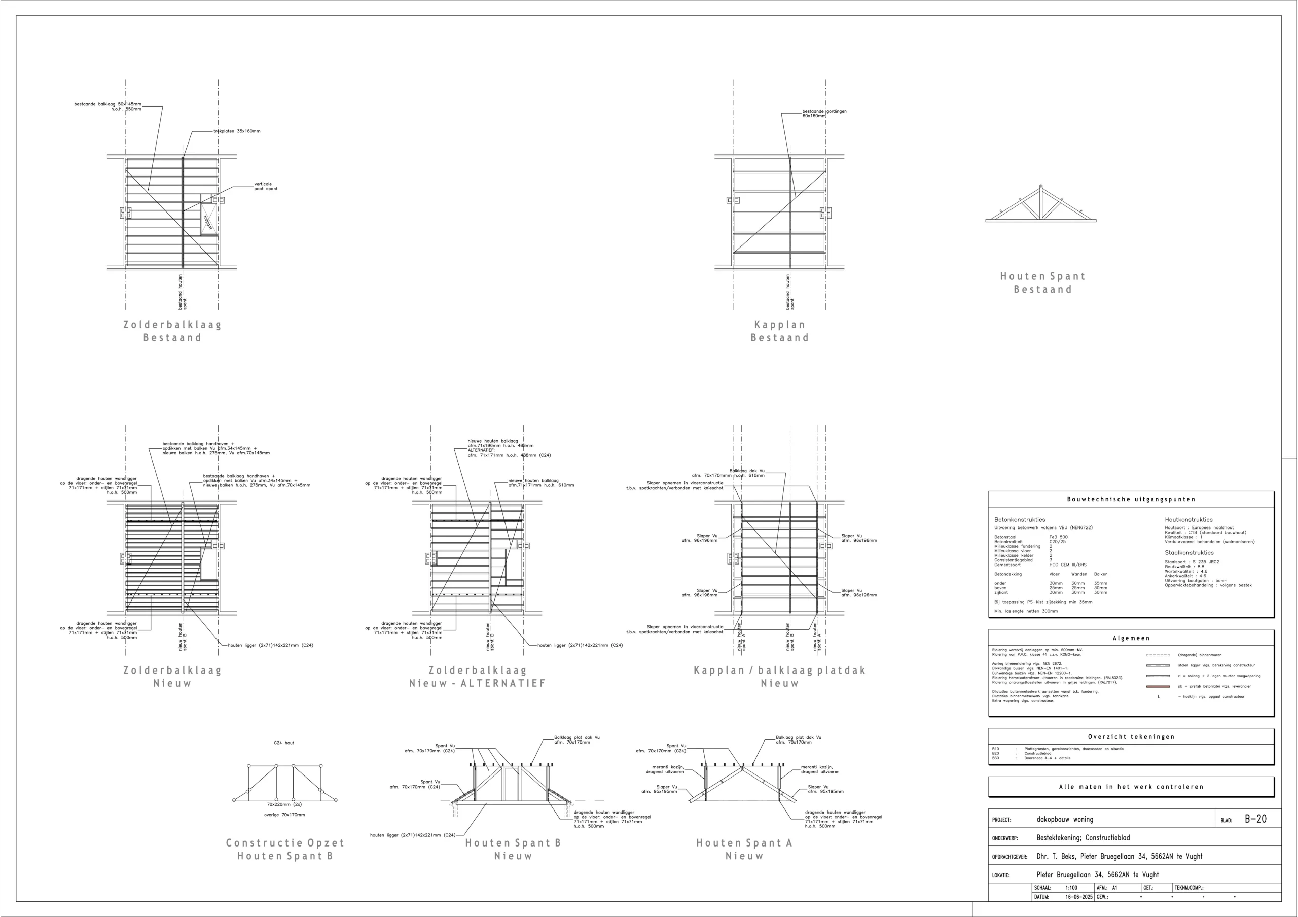
Een dakopbouw betekent een structurele wijziging van uw woning. De bestaande draagconstructie, vloeren en fundering worden zwaarder belast en moeten integraal worden beoordeeld. Bij dit type uitbreiding komen meerdere aspecten samen: extra verticale belasting, stabiliteit van het gebouw, aansluiting op de bestaande constructie, brandveiligheid, daglichttoetreding en toetsing aan het omgevingsplan en welstand. Wanneer deze onderdelen niet zorgvuldig worden uitgewerkt, ontstaat vertraging of aanvullende eisen vanuit de gemeente.
Daarom hanteren wij een geïntegreerde aanpak waarin constructieve analyse, bouwkundige uitwerking en regelgeving samenkomen. De bestaande situatie wordt technisch beoordeeld, de benodigde constructieve voorzieningen worden berekend en de nieuwe opbouw wordt volledig uitgewerkt in duidelijke bouwtekeningen en onderbouwingen. Indien vergunningplichtig, sluit het dossier aan op de gemeentelijke toetsingscriteria.
Het resultaat is een dakopbouw die niet alleen ruimtelijk wenselijk is, maar ook constructief verantwoord en juridisch zorgvuldig voorbereid.
Klaar om uw aanvraag op een solide basis te starten?
Duidelijke ervaringen van opdrachtgevers binnen het vergunningstraject
Voor een verbouwing van onze woning in Breda hadden we nieuwe plattegronden nodig voor de aanvraag. Alles werd professioneel uitgewerkt en afgestemd op de bestaande situatie. Dat gaf veel vertrouwen richting de aannemer.
Tim Mulder Huiseigenaar – BredaVoor het verwijderen van een draagmuur in onze woning in Rotterdam hadden we een constructieberekening nodig. Alles werd duidelijk uitgelegd en de berekening werd snel geleverd. De aannemer wist precies wat er moest gebeuren.
Ruben Meijer Huiseigenaar – RotterdamVoor een uitbouw aan onze woning in Den Bosch hadden we een constructieberekening nodig voor de draagconstructie. Alles werd netjes uitgewerkt en afgestemd met de tekeningen. Dat maakte het traject een stuk overzichtelijker.
Lisa de Boer Huiseigenaar – Den BoschVoor onze uitbouw in Amsterdam zagen we erg op tegen de vergunningsaanvraag. Uiteindelijk werd alles voorbereid en ingediend, inclusief tekeningen en onderbouwing. Daardoor hoefden we zelf nauwelijks iets uit te zoeken.
Sanne Dekker Huiseigenaar – AmsterdamVoor een dakkapel op onze woning in Delft hadden we hulp nodig bij de vergunning. De aanvraag werd volledig voorbereid en ingediend. Dat scheelde ons veel uitzoekwerk met het Omgevingsloket.
Thijs Peters Huiseigenaar– DelftVoor een verbouwing van onze woning in Dordrecht hadden we een omgevingsvergunning nodig. Alles werd netjes gecoördineerd en afgestemd met de gemeente. Daardoor verliep het traject veel rustiger dan verwacht.
Jesse van den Berg Huiseigenaar– DordrechtVoor een aanpassing aan onze woning in Barneveld hadden we een vergunning nodig. De aanvraag werd compleet voorbereid en ingediend, inclusief de benodigde stukken. Dat gaf ons veel duidelijkheid in het proces.
Lotte Hendriks Huiseigenaar – LeidenBasis – Vergunningsgereed
Technisch – Constructief onderbouwd
Compleet – Volledig begeleid
Een gestructureerde aanpak van eerste inventarisatie tot vergunningsgereed dossier.
We bespreken uw wensen en beoordelen globaal of een dakopbouw ruimtelijk en constructief mogelijk is binnen de bestaande woning.
De huidige draagconstructie, vloeren en – indien nodig – fundering worden beoordeeld op geschiktheid voor de extra belasting.
We controleren de geldende voorschriften, maximale bouwhoogte, situering en welstandseisen die van toepassing zijn op uw woning.
De eerste technische opzet met indeling, maatvoering en positionering, afgestemd op regelgeving en constructieve haalbaarheid.
Bepaling en dimensionering van benodigde constructieve voorzieningen, inclusief onderbouwing van belasting en stabiliteit.
Definitieve bouwtekeningen met plattegronden, aanzichten, doorsneden en details, geschikt voor gemeentelijke toetsing.
Interne controle op volledigheid en aanlevering van het complete dossier voor indiening en uitvoering.
Wij zijn gespecialiseerd in het opstellen van vergunningsgeschikte bouwtekeningen voor zowel particulieren als ondernemers. Met bouwkundig inzicht en diepgaande kennis van wet- en regelgeving zorgen wij voor een solide technische basis voor uw aanvraag.
Wij begrijpen dat een vergunningsaanvraag vaak gepaard gaat met onzekerheden, technische eisen en gemeentelijke voorschriften. Onze werkwijze is daarom gericht op duidelijkheid, nauwkeurigheid en praktische uitvoerbaarheid.
Het doel is eenvoudig: bouwtekeningen die niet alleen correct zijn, maar ook direct geschikt voor toetsing en realisatie.
Projectleider/bouwkundig tekenaar
In vrijwel alle gevallen is een dakopbouw vergunningplichtig. Wij toetsen vooraf welke regels vanuit het omgevingsplan en welstand van toepassing zijn op uw woning.
Niet iedere woning is zonder meer geschikt. De bestaande draagconstructie, vloeren en soms ook de fundering moeten worden beoordeeld op de extra belasting. Dit wordt in een vroeg stadium technisch onderzocht.
Bij een dakopbouw kan de extra belasting invloed hebben op de bestaande constructie. Indien nodig wordt beoordeeld of een funderingstoets of aanvullende berekening vereist is.
De technische voorbereiding duurt doorgaans enkele weken, afhankelijk van de complexiteit van de woning. De gemeentelijke behandeling van de vergunning duurt gemiddeld meerdere weken, afhankelijk van de procedure.
Ja. De vormgeving, hoogte en uitstraling van een dakopbouw worden vaak getoetst door welstand. Deze criteria worden vanaf het begin meegenomen in de uitwerking.
Ja. De bouwtekeningen en constructieve onderbouwing zijn geschikt voor zowel gemeentelijke toetsing als uitvoering door uw aannemer.
Bij dit type uitbreiding kan de gemeente aanvullende technische of ruimtelijke vragen stellen. Het dossier wordt daarom zorgvuldig en volledig voorbereid, zodat de aanvraag efficiënt kan worden beoordeeld.
Bij rijwoningen, appartementen of woningen met een VvE kunnen aanvullende afspraken of toestemmingen nodig zijn. Wij adviseren over de technische onderbouwing die in dergelijke situaties vereist kan zijn.
Neem gerust contact op voor een korte inventarisatie.
Blijf op de hoogte van onze nieuwste projecten, tips en aanbiedingen.
Copyright © 2026. Alle rechten voorbehouden. Ontwikkeld door Achieve.nl
Voor een dakkapel op onze woning in Almere hadden we bouwtekeningen nodig. De tekeningen waren overzichtelijk en compleet, inclusief de juiste maatvoering voor de vergunning. Daardoor konden we het traject snel starten.
Lars van Dijk Huiseigenaar – Almere